PROJEKTOVÉ DOKUMENTACE  /  PASPORTY STAVEB  /  INŽENÝRING

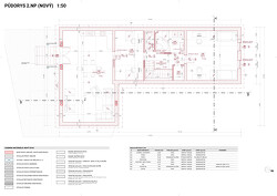
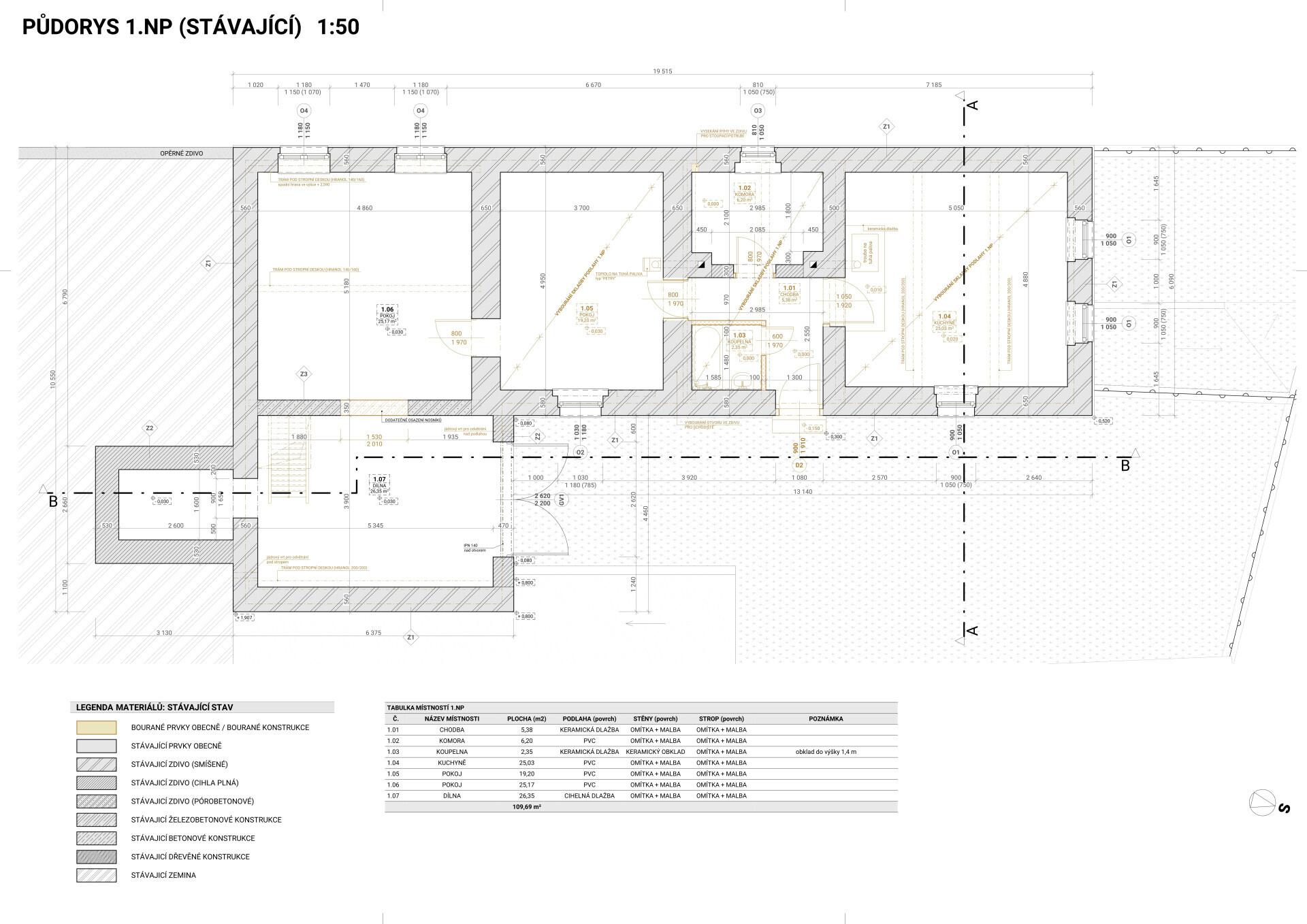
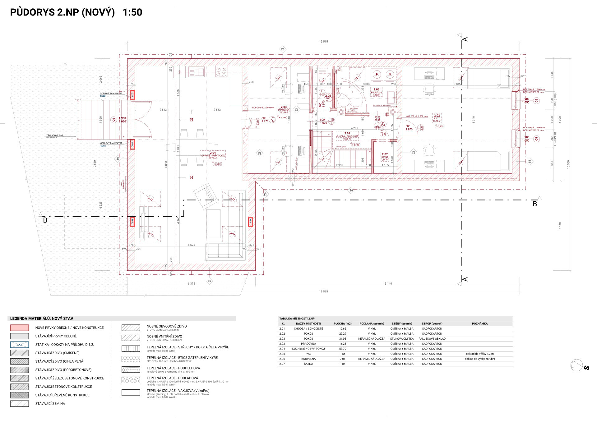
Plánujete rekonstrukci nebo stavbu rodinného domu? Připravíme pro Vás kvalitní projektovou dokumentaci, která vám usnadní celý proces od prvního návrhu až po vyřízení stavebního povolení. Specializujeme se na projektové dokumentace rekonstrukcí rodinných domů, ale pomohu vám i s novostavbou nebo pasportizací stávajících staveb. Součástí služby je i inženýring, takže zajistíme potřebná jednání s úřady a dotčenými orgány. Pracujeme v programu ArchiCad, což nám umožňuje tvořit projekty v moderním BIM prostředí. Výsledkem je přehledná a detailní dokumentace, která usnadní komunikaci se všemi, kdo se na projektu podílejí.

 

  

VÝHODY:

  • Kompletní servis od studie po inženýring
  • Moderní zpracování v Archicadu
  • Vyřízení povolení stavby
  • Ucelený balíček projekčních služeb
  • Osobní přístup

PRO KOHO JE SLUŽBA URČENA:

  • Soukromí investoři
  • Společenství vlastníků
  • Obce a veřejná správa